One thing is for sure: Atlético Dallas continues to move forward with a fan-first mentality, this time with the announcement – including imagery and plans – for a supporters bar, restaurant, and soccer court to Expo Park near the Cotton Bowl.
Coming to the location over the next year will be an outdoor street court – opening in Expo Park ahead of the 2026 FIFA World Cup – and a new soccer supporters bar opening later in 2026.
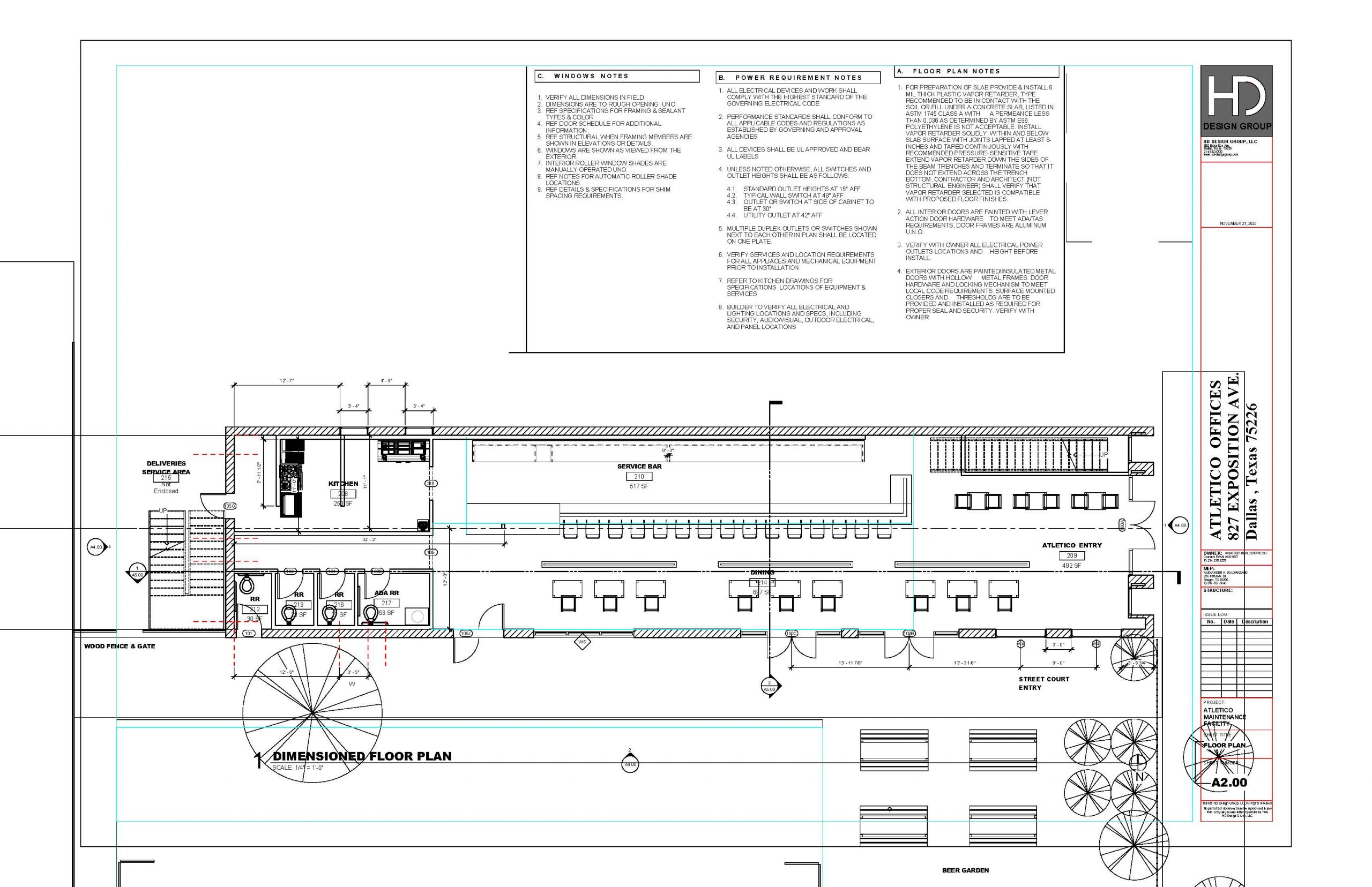
The restaurant and bar have tentatively been named The Den. As with everything else, Atlético will likely take fan feedback on many elements, including the name.

“We want every neighborhood in Dallas to feel connected to this club, and that means investing in spaces where people already live, gather, and play,” said Matt Valentine, Co-Founder & Chairman, Atlético Dallas. “Expo Park is the first step in our long-term commitment to make soccer accessible across the entire county.”
Atlético says they plan to build street soccer courts across Dallas County, in partnership with Street FC, increasing access to the game in urban communities.
“Street football is the heart of the sport. These new courts and community spaces will energize Dallas and create more places for people to play,” said Kyle Martino, Founder of Street FC and new Atlético Dallas partner.

The soccer court at Expo Park development project is the first of these shared projects between Atlético Dallas and Street FC. A series set to expand access to the game by building street courts across Dallas County.
“Our vision is a Dallas where anyone, at any level, can step onto a soccer court,” added Sam Morton, Co-Founder & Chief Commercial Officer, Atlético Dallas. “These investments represent how serious we are about fulfilling our promises to the community. We are fully committed to building a supporter culture rooted in accessibility.”
Some renderings and architectural drawings of the space were made available to the media, and the club says it will be just a 10-minute walk from the new supporters bar to the Cotton Bowl.


3rd Degree’s Take
This is an amazing space. It reminds u of the early days of the Dallas Burn at the Cotton Bowl when coaches and even players could be found at the Old Mill Inn in Fair Park after the game. Although this time in a more specific Atlético Dallas curated space.
It should make an ideal pre/post-game venue for fans.

Nice rendering, but I’d caution against sitting patrons behind the goal unless there is a non pictured fence 🙂
haha right?