Atlético Dallas has reached an agreement with the City of Dallas to move the club’s executive offices from Richardson to Dallas at Expo Park. In return, the City will grant Atlético a $200,000 economic development incentive if certain requirements are met.
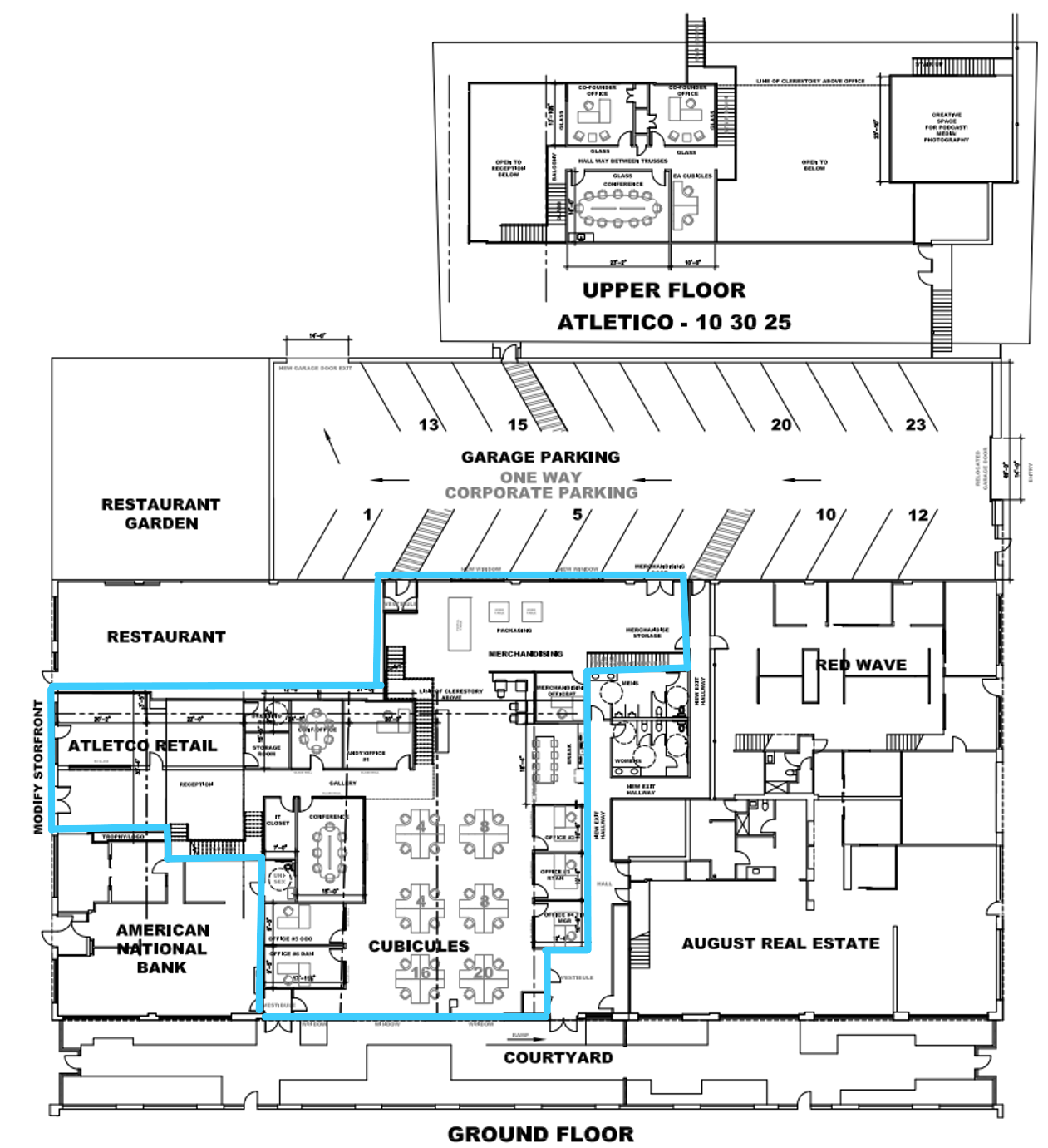
Atlético Dallas will lease approximately 12,000 square feet at 820 Exposition Avenue, located near the gates of Fair Park and the DART Fair Park Station, just across the street from the club’s supporters bar – tentatively named The Den at Expo Park – and street soccer facility.
The new club headquarters will include 1,500 square feet of street-facing retail space, which will serve as the club’s official retail shop and a welcoming front door for fans and visitors.
“This move is about much more than an office,” said Matt Valentine, Founder and Chairman of Atlético Dallas. “Relocating our headquarters to Expo Park allows us to put down roots in a historic and culturally significant part of Dallas while creating a true hub for community, creativity, and connection. We’re building a place that welcomes fans year-round and reflects our commitment to growing the game and giving back to the city that’s embracing us.”

The grant from the City of Dallas is not paid up front and will be delivered in 3 payments if certain targets are met.
For the grant, Atlético Dallas is required to:
- Lease approximately 12,000 square feet at 820 Exposition Avenue for at least 7 years
- Invest at least $1.2 million in private capital improvements (with total projected improvements of ~$1.35 million)
- Retain 12 existing jobs and create up to 85 new jobs over five years
- Meet all wage, hiring, and reporting requirements
Atlético Dallas Job Requirements
- Positions include executive, professional, administrative, coaching, and player roles.
- Minimum wage: $23.06/hour
- Average wage requirement: at least $90,000 (excluding bonuses, overtime, and benefits)
- Projected average across full-time jobs: approximately $114,000 (includes player salaries)
- At least 20% of grant-eligible jobs must be filled by Dallas residents.
- Atlético Dallas is required to partner with Dallas College to support workforce development, career pathways, and professional opportunities for local students and residents.
“The City of Dallas is proud to welcome Atlético Dallas and its new corporate headquarters near the gates of Fair Park and DART’s Fair Park station—a vibrant and growing hub for business, culture, and community,” said Assistant Dallas City Manager Robin Bentley.
According to the city, the economic development incentive, offered through an administrative action authorized by the City Manager, supports tenant improvements and business expansion within a City-designated Economic Development Target Area.
“This investment and corporate relocation will further strengthen our commitment and vision to create dynamic spaces to draw residents, sports fans, and visitors to the Fair Park neighborhood in the heart of Dallas,” Bentley added.
If Atlético Dallas meets the requirements, payments from the City of Dallas will be distributed on the following timeline.
- Installment 1 (up to $100,000): Earned after executing a long-term lease, completing the required private investment, receiving a certificate of occupancy, officially relocating headquarters to Dallas, and moving existing jobs to the site.
- Installment 2 (up to $50,000): Earned after maintaining existing jobs, creating 30 additional jobs, and complying with workforce partnership requirements.
- Installment 3 (up to $50,000): Earned after maintaining prior jobs, creating 30 more jobs, and continuing workforce partnership compliance.
Atlético Dallas Office Rendering


“Atletco Retail”? Misspelling your own name is inexcusable.
“Cubicules”?
I hope somebody proofreads that contract.